In the【 Malaysia luxury residential 】market, Eco Grandeur – Wellington Garden stands out with its unique eco-concept, low-density design, and premium facilities, making it the top choice for modern families seeking a high-quality lifestyle. Located in Puncak Alam, Selangor, this green smart township offers a perfect blend of modern living and nature, creating a comfortable and sustainable environment for every resident.

Experience Eco-Luxury and Redefine Future Living | Malaysia luxury residential
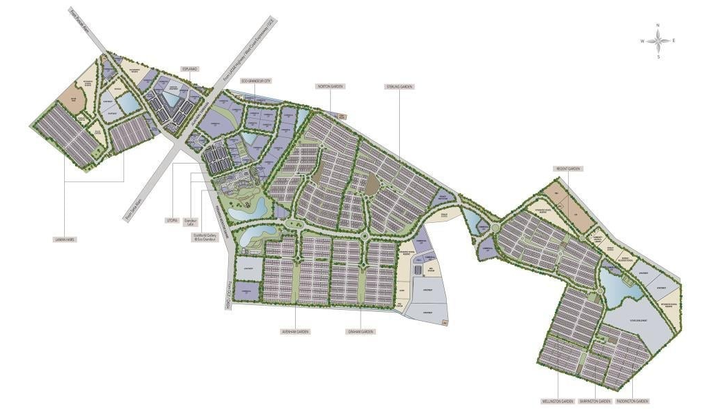
Eco Grandeur is a comprehensive eco-community integrating high-end residences, affordable homes, and commercial developments. With over 20% green coverage, the township fosters a vibrant environment that enhances living comfort and promotes harmony between people and nature.

Here, residents enjoy a 15-foot linear garden at the back of their homes, offering additional recreational and interactive spaces. This unique design not only enhances the openness of the community but also improves air quality, making it an ideal choice for those looking for high-end villa recommendations in Malaysia.
Low-Density Luxury Homes Designed for the Perfect Living Space
Eco Grandeur – Wellington Garden offers 2-story terrace houses with built-up sizes ranging from 1,469 to 1,700 sq. ft, featuring 4 bedrooms and 3 bathrooms—perfect for multigenerational families or buyers seeking spacious living areas.

With only 605 units planned within a low-density community, residents can enjoy greater privacy. Most importantly, this is a gated and guarded community with 24-hour security, ensuring peace of mind for you and your family.
In Malaysia’s luxury residential areas, security and living environment are key concerns for buyers. Eco Grandeur – Wellington Garden offers both, with its exclusive gated community and premium amenities, making it the perfect home for discerning buyers.
Premium Facilities for an Active & Healthy Lifestyle – Malaysia luxury residential

To cater to modern urban lifestyles, Eco Grandeur – Wellington Garden features an exclusive luxury clubhouse equipped with:
- Gymnasium Room – Stay fit with top-tier workout facilities
- Multi-Purpose Hall – The perfect venue for social gatherings and private events
- Community Garden – Connect with nature and experience the beauty of greenery
- Recreation Lake – Enjoy serene waterscapes for a tranquil living experience
- Jogging Track – Ideal for morning and evening runs in fresh air
Additional facilities include a children’s playground, BBQ area, landscaped garden, VIP lounge, and perimeter fencing, ensuring residents enjoy both convenience and security. These high-end features make Eco Grandeur – Wellington Garden one of the top luxury property investments in Malaysia, whether for own stay or investment.
Prime Location with Promising Investment Potential
Located in Puncak Alam, Eco Grandeur – Wellington Garden is situated in a rapidly developing area that has become a prime hotspot for property investment. With continuous infrastructure growth, the project holds immense appreciation potential.
For buyers seeking the most expensive properties in Malaysia, Eco Grandeur – Wellington Garden combines an exceptional location, low-density high-end design, and a sustainable living environment—making it a highly attractive long-term investment.
The project is expected to be completed in Q1 2026, making it an ideal opportunity for those looking to secure a high-end home in Malaysia in the coming years.
If you’re searching for a luxurious, eco-friendly, and future-proof home, Eco Grandeur – Wellington Garden is the perfect choice!
More Pictures:








